BAT BUT 1 PROJET N°1 : Réalisation d'une coupe verticale

- Contexte de la mission :
Situation d’Apprentissage et d’Évaluation commune (SAE) réalisée en groupe de 4 personnes.

- Projet concerné :
Reconstruction de la résidence senior « Les Séquoias », située au 13 avenue Charles et Émile Lestage, à Gradignan.

Présentation de la tache

Présentation de la tache

Apprentisages critiques intervenant dans le projet

Apprentisages critiques intervenant dans le projet

Détails de la coupe

Détails de la coupe

 

Réalisation d’une coupe intégrant les détails techniques du CCTP.

Identification des lots intervenants à partir de la coupe.
Analyse des tâches et prestations associées à chaque lot.
Intervention de plusieurs lots, notamment :

-Lot plâtrerie
-Lot peinture

Annexe

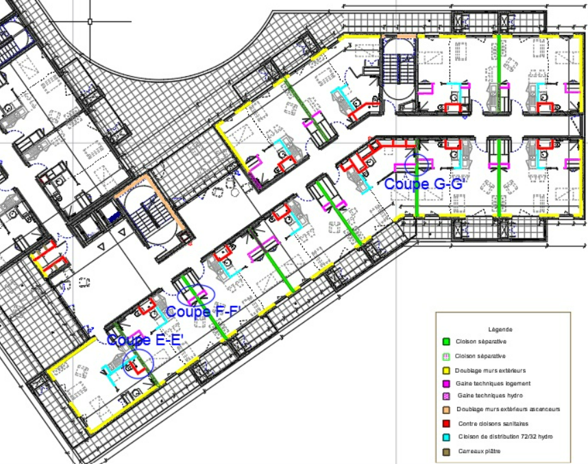
Image 1: Plan de repérage des différents cloisons 

Image 2: Tableau de classification des différents types de cloisons 

Image 3: Localisation de la coupe